土地 春日部市大場
所在地
春日部市大場
790万円
28.00坪
建築条件なし お好きなハウスメーカー様で建築可能となっております。
セブンイレブン春日部大場西店 約450m 徒歩約6分
ローソン越谷恩間新田店 約750m 徒歩約10分
ローソン越谷恩間新田店 約750m 徒歩約10分
スーパーバリュー春日部大場店 約750m 徒歩約10分
カスミフードスクエア春日部武里店 約1,090m 徒歩約14分
イオンせんげん台店 約1,744m 徒歩約22分
武里西小学校 約600m 徒歩約8分
春日部南中学校 約750m 徒歩約10分
月々の支払例
【※ボーナス払い無し】
【※ボーナス払い無し】
※埼玉りそな銀行/頭金0円、返済期間35年、金利0.950%変動金利変動金利(2026年04月)の場合
※金利は毎月見直されます。別途、融資手数料、その他諸費用がかかります。
※審査により金利は変わる可能性があります。
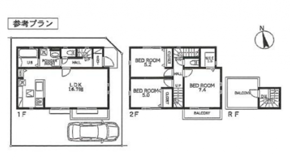
物件概要
- 交通
-
伊勢崎線 武里駅 まで 徒歩19分
- 接道状況
-
北東側 私道5m 間口約8m
南東側 私道4m 間口約8m - 土地面積
- 公簿 92.58㎡ (28.00坪)
- 建ぺい率
- 60%
- 容積率
- 200%
- 土地権利
- セットバック
- 無し
- 小学校区
- 武里西 ( 600m )
- 中学校区
- 春日部南 ( 750m )
- 私道負担
- 有 305.62 ㎡
- 建築条件
- なし
- 地目
- 宅地
- 現況
- 上物有
- 引渡時期
- 相談
- 上水道
- 公共
- 下水道
- 公共
- ガス
- 都市ガス
- 都市計画
- 市街化調整区域
- 用途地域
- 設備・条件
- 角地 更地渡し
- 備考
-
※土地面積の他に私道持分有 (地積:305.62㎡、持分:878/15281)
※実測面積92.54㎡ ※南側1mには、建築できません。(避難通路のため) - 取引態様
- 仲介

