中古一戸建て 春日部市南4丁目
所在地
春日部市南4丁目
2,980万円
45.84坪
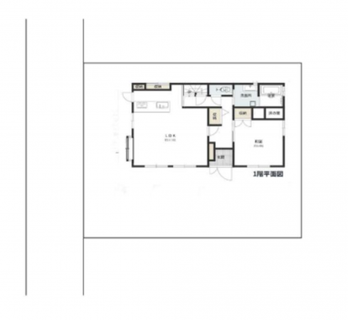
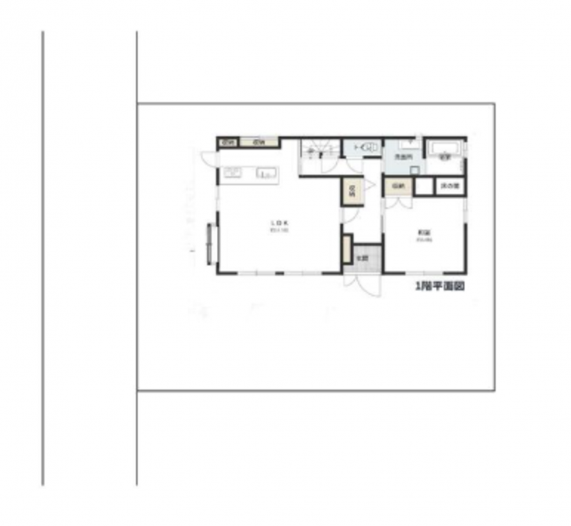
4SLDK
ローソン春日部南4丁目店 約205m 徒歩約3分
ドラッグセイムス 一ノ割店 約450m 徒歩約6分
春日部厚生病院 約450m 徒歩約6分
ジョイフーズ春日部南店 約540m 徒歩約7分
アイリス 歯科 約650m 徒歩約9分
ウエルシア春日部緑町店 約850m 徒歩約11分
マルエツ 春日部緑町店 約900m 徒歩約12分
上沖小学校 約650m 徒歩約9分
大沼中学校 約1300m 徒歩約17分
月々の支払例
【※ボーナス払い無し】
【※ボーナス払い無し】
※埼玉りそな銀行/頭金0円、返済期間35年、金利0.950%変動金利変動金利(2026年04月)の場合
※金利は毎月見直されます。別途、融資手数料、その他諸費用がかかります。
※審査により金利は変わる可能性があります。
物件概要
- 交通
-
伊勢崎線 一ノ割駅 まで 徒歩9分
東武野田線 春日部駅 まで 徒歩23分
- 接道状況
- 西側 私道4m 間口約13m
- 土地面積
- 公簿 211.50㎡ (63.97坪)
- 建物面積
- 151.54㎡ (45.84坪)
- 築年数
-
1995年
(平成7)
1月
築31年 - 建ぺい率
- 60%
- 容積率
- 200%
- 土地権利
- 所有権
- 構造および階数
- 木造 地上2階建
- 小学校区
- 上沖 ( 650m )
- 中学校区
- 大沼 ( 1300m )
- 私道負担
- 地目
- 宅地
- 現況
- 空
- 引渡時期
- 相談
- 駐車場
- 有
- 上水道
- 公共
- 下水道
- 公共
- ガス
- 都市ガス
- 都市計画
- 市街化区域
- 用途地域
- 1種中高
- 設備・条件
- システムキッチン、カウンターキッチン、モニタ付インターホン、洗浄便座、ウォークインクローゼット、追い焚き、駐車場2台分、床下収納、トイレ2箇所、エアコン照明器具付き 庭
- 備考
-
【契約不適合責任】 本物件は現況渡しとなります。引き渡し後に雨漏り、シロアリ被害、給排水管の故障などの不具合が発見された場合でも、売主は修理等の責任を負いません。
【道路・権利関係】 西側接道は私道 (位置指定道路)です。
【境界・ 面積】 隣地との境界確定は行わず登記簿上の面積(公簿)で取引を行います。
実際 の面積と差異が生じた場合でも、売買代金の清算 (増減) は行いません。
【駐車スペース】外構整備により2台駐車可能ですが、車種や運転技術により成げが生じる場合があります。
必ず用地にての出し入れやサイズをご確認ください。 - 取引態様
- 仲介

