新築一戸建て 春日部市西金野井5号棟
所在地
春日部市西金野井5号棟
3,880万円
30.80坪
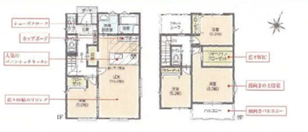
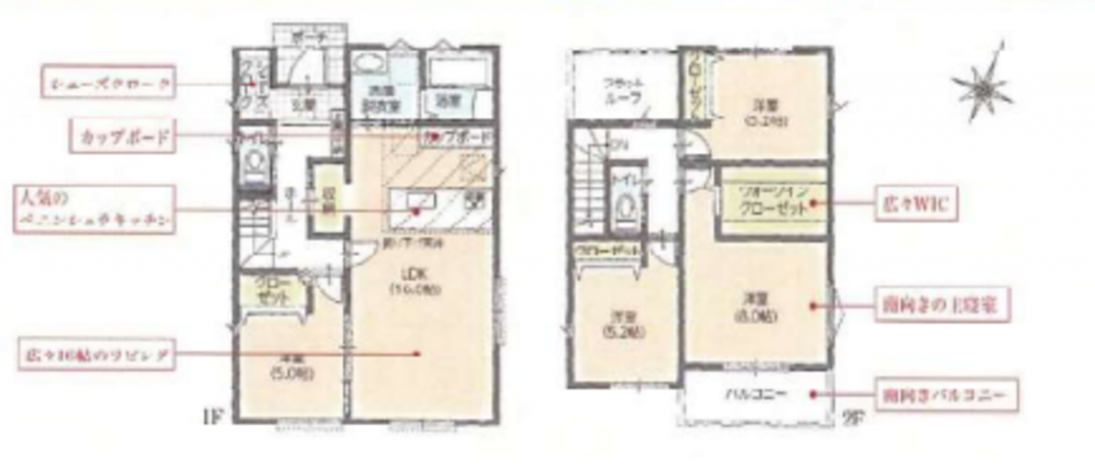
4LDK
タマタウン春日部市西金野井Ⅱ 全5邸 長期優良住宅です。
庄和こばと幼稚園 約400m 徒歩約5分
カワチ薬局南桜井駅 約1,000m 徒歩約13分
グレース家庭医療クリニック 約1,200m 徒歩約15分
南桜井駅 約1,500m 徒歩約19分
ヤオコー南桜井店 約1,800m 徒歩約23分
イオンモール春日部 約3,100m 徒歩約39分
桜川小学校 約1,000m 徒歩約13分
葛飾中学校 約2,400m 徒歩約30分
月々の支払例
【※ボーナス払い無し】
【※ボーナス払い無し】
※埼玉りそな銀行/頭金0円、返済期間35年、金利0.950%変動金利変動金利(2026年04月)の場合
※金利は毎月見直されます。別途、融資手数料、その他諸費用がかかります。
※審査により金利は変わる可能性があります。
物件概要
- 交通
-
東武野田線 南桜井駅 まで 徒歩21分
- 接道状況
- 北西側 公道5m
- 土地面積
- 公簿 141.27㎡ (42.73坪)
- 建物面積
- 101.85㎡ (30.80坪)
- 築年数
- 2026年 (令和8) 7月
- 建ぺい率
- 60%
- 容積率
- 200%
- 土地権利
- 所有権
- 構造および階数
- 木造 地上2階建
- 小学校区
- 桜川 ( 1000m )
- 中学校区
- 葛飾 ( 2400m )
- 私道負担
- 無
- 地目
- 宅地
- 現況
- 引渡時期
- 相談
- 駐車場
- 上水道
- 公共
- 下水道
- 公共
- ガス
- 都市ガス
- 都市計画
- 市街化区域
- 用途地域
- 1種住居
- 設備・条件
- 食器洗浄乾燥機、ウォークインクローゼット、食器洗浄乾燥機、ウォークインクローゼット、スマートコントロールキー カップボード
- 備考
- 取引態様
- 仲介

