中古マンション ヴェルアージュ春日部中央
所在地
春日部市中央3丁目
1,590万円
60.99m²
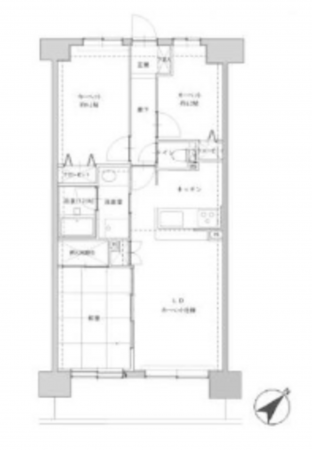
3LDK
令和7年4月末 新規リノベーション完了予定のファミリーマンションです。
小中学校 - SCHOOL -
■保育所
春日部市立第3保育所 (503m)
■小学校
春日部市立八木崎小学校 (168m)
■中学校
春日部市立春日部中学校 (1529m)
■高校
埼玉県立春日部高校 (721m)
その他周辺情報
セブン-イレブン 春日部西口店 1000m 徒歩約13分
春日部西口駅前クリニック 750m 徒歩約10分
ウエルシア春日部谷原店 1300m 徒歩約19分
ワークマンプラス春日部中央店 650m 徒歩約10分
月々の支払例
【※ボーナス払い無し】
【※ボーナス払い無し】
※埼玉りそな銀行/頭金0円、返済期間35年、金利0.950%変動金利変動金利(2026年04月)の場合
※金利は毎月見直されます。別途、融資手数料、その他諸費用がかかります。
※審査により金利は変わる可能性があります。
物件概要
- 交通
-
東武野田線 春日部駅 まで 徒歩12分
- 専有面積
- 内法 60.99㎡
- バルコニー
-
面積不明 (南東側)
面積不明 - 所在階/階数
- 築年数
-
1995年
(平成7)
8月
築30年 - 建ぺい率
- 容積率
- 土地権利
- 所有権
- 構造および階数
- RC(鉄筋コンクリート) 造 地上6階建
- 総戸数
- 小学校区
- 八木崎 ( 200m )
- 中学校区
- 春日部 ( 1300m )
- 地目
- 現況
- 空
- 引渡時期
- 相談
- 駐車場
- 駐車場月額
- ※空き状況は管理会社へ要確認願います。
- 管理形態
- 全部委託
- 管理方式
- 管理人日勤
- 管理会社
- 伊藤忠アーバンコミュニティ
- 管理費
- 14,700円
- 修繕積立費
- 25,600円
- 上水道
- 下水道
- ガス
- 都市ガス
- 都市計画
- 用途地域
- 1種住居
- 設備・条件
- システムキッチン、モニタ付インターホン、エレベーター、メールBOX/モニター付きインターホン/エレベー ター/24時間ゴミ出し/駐車場 /BS/CATV(JCOM)/NTT
- 備考
-
※申込受付中
※レインズ掲載中はご紹介可能のため、物件確認不要です。
※質問などにつきましては、可能な限りメールでお願いいたします。
内見希望の際は、内見日の2日前までに内見依頼書をご送付ください。
※重要※買取業者様の目線にはなりません。(業者買い取りのご連絡お断り) - 取引態様
- 仲介

