中古マンション ベルドゥムール春日部東
所在地
春日部市小渕
1,399万円
68.40m²
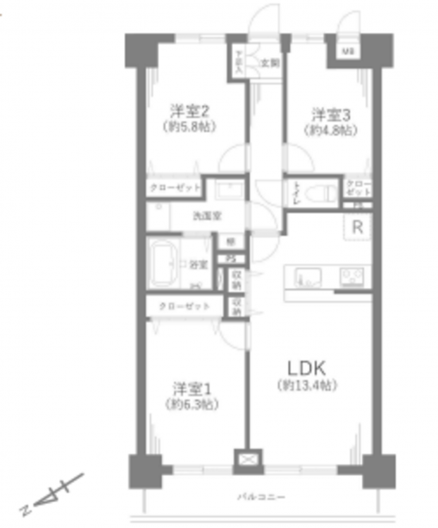
3LDK
充実した仕様・設備のリフォーム済住戸(アフターサービス保証付き) ペット飼育可(飼育細則有り) の物件となります。
ウエルシア春日部八丁目店 約170m 徒歩約3分
生鮮市場TOP 春日部店 約350m 徒歩約5分
ファミリーマート春日部小渕南店 約350m 徒歩約5分
幸松小学校 約750m 徒歩約10分
東中学校 約1300m 徒歩約17分
月々の支払例
【※ボーナス払い無し】
【※ボーナス払い無し】
※埼玉りそな銀行/頭金0円、返済期間35年、金利0.950%変動金利変動金利(2026年04月)の場合
※金利は毎月見直されます。別途、融資手数料、その他諸費用がかかります。
※審査により金利は変わる可能性があります。
物件概要
- 交通
-
伊勢崎線 春日部駅 まで 徒歩17分
- 専有面積
- 壁芯 68.40㎡
- バルコニー
-
7.80㎡ (北西側)
面積不明 - 所在階/階数
- 4階/7階
- 築年数
-
1996年
(平成8)
2月
築30年 - 建ぺい率
- 容積率
- 土地権利
- 旧法賃借
- 構造および階数
- RC(鉄筋コンクリート) 造 地上7階建
- 総戸数
- 124戸
- 小学校区
- 幸松 ( 750m )
- 中学校区
- 東 ( 1300m )
- 地目
- 現況
- 空
- 引渡時期
- 即時
- 駐車場
- 駐車場月額
-
7,000円/月
※空き状況は管理会社へ要確認願います - 管理形態
- 全部委託
- 管理方式
- 管理人日勤
- 管理会社
- 毎日興業株式会社
- 管理費
- 12,300円
- 修繕積立費
- 9,590円
- 上水道
- 下水道
- ガス
- 都市計画
- 用途地域
- 1種住居
- 設備・条件
- システムキッチン、カウンターキッチン、浴室乾燥機、洗浄便座、追い焚き、オートロック、エレベーター、浄水器 駐輪場 バイク置き場 ペット相談
- 備考
-
売主3% ★新規売出!★
物件資料は弊社ホームページよりダウンロード可能です!
定期借地権(2055年1月13日迄) 借地料:9,650円/月 - 取引態様
- 仲介

