中古マンション レガード春日部中央
所在地
春日部市中央3丁目
2,100万円
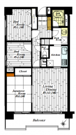
66.12m²
3LDK
近隣にショッピングパーク(ララガーデン春日部)があり、お買い物に便利です。
セブンイレブン春日部新方袋店 約300m 徒歩約4分
谷原第1公園 約450m 徒歩約6分
ララガーデン春日部 約1,400m (車で約8分)
八木崎小学校 約350m 徒歩約5分
大沼中学校 約1,600m 徒歩約20分
月々の支払例
【※ボーナス払い無し】
【※ボーナス払い無し】
※埼玉りそな銀行/頭金0円、返済期間35年、金利0.950%変動金利変動金利(2026年04月)の場合
※金利は毎月見直されます。別途、融資手数料、その他諸費用がかかります。
※審査により金利は変わる可能性があります。
物件概要
- 交通
-
東武野田線 八木崎駅 まで 徒歩10分
- 専有面積
- 壁芯 66.12㎡
- バルコニー
-
10.14㎡
面積不明 - 所在階/階数
- 4階/5階
- 築年数
-
1994年
(平成6)
3月
築32年 - 建ぺい率
- 容積率
- 土地権利
- 所有権
- 構造および階数
- RC(鉄筋コンクリート) 造 地上5階建
- 総戸数
- 39戸
- 小学校区
- 八木崎 ( 350m )
- 中学校区
- 大沼 ( 1600m )
- 地目
- 現況
- 空
- 引渡時期
- 相談
- 駐車場
- 空無
- 駐車場月額
- ※空き状況は管理会社へ要確認願います
- 管理形態
- 全部委託
- 管理方式
- 管理会社
- 管理費
- 13,550円
- 修繕積立費
- 14,740円
- 上水道
- 下水道
- ガス
- 都市計画
- 用途地域
- 1種中高
- 設備・条件
- システムキッチン、エレベーター、ガス給湯器 エアコン
- 備考
- ペット飼育:他の居住者に迷惑又は危害を及ぼすおそれのある動物の飼育は禁止
- 取引態様
- 仲介

