収益物件/倉庫 春日部市豊野町2丁目
所在地
春日部市豊野町2丁目
14,900万円
セブンイレブン春日部銚子口店 約1,000m 徒歩約13分
カスミ春日部藤塚店 約1,800m 徒歩約23分
松村医院 約1,300m 徒歩約17分
豊野小学校 約1,000m 徒歩約13分
豊野中学校 約900m 徒歩約12分
月々の支払例
【※ボーナス払い無し】
【※ボーナス払い無し】
※埼玉りそな銀行/頭金0円、返済期間35年、金利0.950%変動金利変動金利(2026年04月)の場合
※金利は毎月見直されます。別途、融資手数料、その他諸費用がかかります。
※審査により金利は変わる可能性があります。
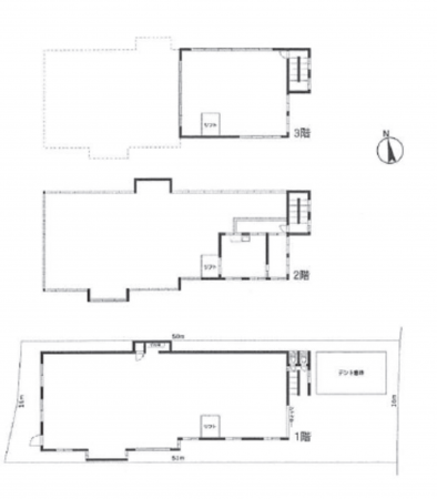
物件概要
- 交通
-
伊勢崎線 一ノ割駅 まで 徒歩37分
- 接道状況
- 南東側 公道8m 間口約16m
- 土地面積
- 826.49㎡ (250.01坪)
- 建物面積
- 662.68㎡ (200.46坪)
- 所在階/階数
- 築年数
-
1985年
(昭和60)
9月
築40年 - 建ぺい率
- 60%
- 容積率
- 200%
- 土地権利
- 所有権
- 構造および階数
- 鉄骨造 地上3階建
- 総戸数
- 小学校区
- 豊野 ( 1000m )
- 中学校区
- 豊野 ( 900m )
- 私道負担
- 無
- 地目
- 宅地
- 現況
- 空
- 引渡時期
- 相談
- 駐車場
- 上水道
- 下水道
- 浄化槽個別
- ガス
- プロパン個別
- 都市計画
- 市街化区域
- 管理形態
- 管理方式
- 用途地域
- 工業
- 設備・条件
- 備考
-
●個別プロパンガス・個別浄化槽⇒(都市ガス・本下水接続可)
●豊野工業団地築計画あり
●建物充分使用可
●現況有姿取引とし、建築物が古いので瑕疵担保責任はないものとする - 取引態様
- 仲介

